|
@
@@No.1329 鉺’¬¤‹Æ‹æˆæ‚ÌŒ³Ž•‰Èˆã‰@
@@@@E’zŒã70”NˆÈã‚ÌŽï‚«Žc‚é’¬‰ÆŒš’z
@@@@EŒ³Ž¡—ÃŽº‚ÍL‘å‚ȃtƒŠ[ƒXƒy[ƒX
@@@@@Žg‚¢•û‚É–²–c‚ç‚Þ
@@@@E’†’ë—L‚è
@@@@EŒºŠÖ‘O‚É’“ŽÔ1‘ä‰Â
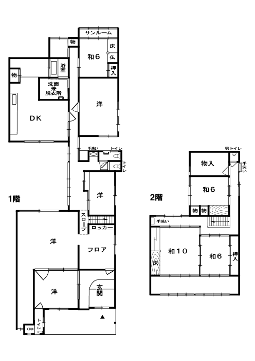
@@@@E•ꉮ+•‘®‰®215.18‡u –ñ65.09’Ø
@@@@@7DK{–ñ33’Ÿ‚̃tƒŠ[ƒXƒy[ƒX•t
 |
|
|
 |
 |
 |
| ŒºŠÖ |
ƒtƒƒA |
‰žÚŠÔ |
 |
 |
 |
| ˜a‚U’ŸŠÔ |
“ñŠK |
“ñŠK˜a6’Ÿ+10’Ÿ |
 |
 |
 |
| DK |
—Žº |
ô–Ê |
|
 |
| ŠÔŽæ‚è}@¦ƒNƒŠƒbƒN‚ÅŠg‘å•\ަ |
| •~@’n@ |
•¨ŒŠT—v |
 |
ŠÝ’n@’ÃŽRŽs“c’¬125-3
‰¿@Ši@800–œ‰~@[’‡‰î]
“y’n–ÊÏ 287.76‡u@–ñ87.34’Ø
’n@–Ú@‘î’n
Œš@•¨@–Ø‘¢Š¢•˜“ñŠKŒš
@@@@@1ŠK60.16‡u
@@@@@2ŠK59.83‡u
@@@@‡Œv 119.99‡u 36.29’Ø
@@@@@•‘®Œš•¨
@@@@@‹‘î2+†Ž–ê
@@@@ ‡Œv95.19‡u 28.79’Ø
@@@@
Ý@”õ@@“d‹CEã…“¹
@@@@@ò‰»‘…
Œð@’Ê@@‚i‚q’ÃŽRü
@@@@@i’ÃŽR‰w 1.6kmj
@@@@@’†‘Ž©“®ŽÔ“¹
@@@@@i’ÃŽRIC 5.9kmj |
| Copyright(c) 1988 yamakyo. All Rights Reserved.. |
|
|
|
|