|
No.1341 津山の西の中心部付近
・駐車3台可
・離れにもトイレ 台所有
・物置、屋根裏収納部屋、倉庫付
・徒歩圏内に駅、複合商業施設、銀行、
郵便局(簡易局)、ホームセンター等有
・スーパー銭湯「えびす乃湯」190m
 |
|
|
|
 |
| 玄関土間 |
一階和室 |
 |
 |
| 1階和室 |
1階和室 |
 |
 |
| 台所 |
浴室 |
 |
 |
| 離れ一階和室 |
離れ2階和室 |
 |
 |
| 離れ台所 |
離れ広縁 |
 |
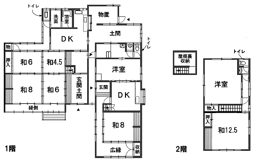
| 間取り |
| 敷 地 |
物件概要 |
 |
所在地 津山市院庄875-6
価 格 480万円 [仲介]
土地面積 681.75u 約206.22坪
地 目 宅地
建 物 145.44u 約43.99坪
1階87.29u
2階58.15u
設 備 電気・上水道
浄化槽
交 通 JR姫新線
(院庄駅 350m)
中国自動車道
(院庄IC 800m) |
| Copyright(c) 1988 yamakyo. All Rights Reserved.. |
|
|
|
|